跳到主要內容

- 聚落與建築景觀 -

臺灣洋菇產業下的新豐青埔梁屋洋菇寮

黃蘭翔 撰述日期:2023/5 新增日期:2024/9 更新日期:2024/9
洋菇熱量低,富含蛋白質、多種維生素和纖維質,有益人體健康,所以廣為一般人們所喜愛。其營養價值比肉類高,具有動物性食品之優點,故有 「植物肉」的美稱,而低脂、富含膳食纖維,則兼具植物性食品之特點。不過起始在臺灣栽培是因為其經濟貿易上的價值。 關於洋菇在臺灣發展史的沿革,我們可以在陳宗明等人的著作〈台灣菇類產業生產現況〉,知道台灣菇類產業發展起自1909年,當時即有香菇段木人工栽培之記錄,至今已有百年以上之歷史。而在1950年代起台灣政府因推展農產品加工外銷,因此當時有蘆筍、鳳梨與洋菇三大罐頭產業,其中洋菇產業由於政府的推動,使得當時農村冬天時家家戶戶種洋菇,並使台灣在1970年代成為世界洋菇罐頭出口之大國,使台灣有「洋菇王國」之美譽。但隨著1980年代起,臺灣政府將產業重心由農業轉移到工業,並大量成立加工出口區,使得農村勞力下降,加上中國大陸與東南亞等國利用廉價之資源與人力投入洋菇之生產,也使得臺灣洋菇產業逐漸沒落;但洋菇產業當時墊下之基礎,也使得後續金針菇產業與香菇產業得以發展,至今仍是台灣最重要之兩大菇類品項,此外在1990~2000年由於台灣農業試驗所之推廣,開啟了台灣環控菇類栽培的新一頁。 洋菇栽培有兩件關鍵的事情,亦即一是栽植洋菇的寮舍,二則是堆肥發酵的方法與配方。如今,國內洋菇栽培生產方式已經逐漸由簡易式傳統菇寮轉型成精密的環控菇舍,原來臺灣僅適合冬季生產,後來轉變成全年都可以生產。傳統菇舍栽培洋菇易受天然氣候影響,產量亦不穩定。
在1980年前,洋菇栽培大都傳統簡易型菇寮為主,1980年後,則逐漸有菇場將菇舍改建為環控設施,增加冷氣設備進行環境調控。早期環控菇場栽培模式主要是在栽培出菇室的改善,利用現有的洋菇生產菇房,以噴保溫材料PU方式或是利用鋼構鐵皮屋直接噴PU保溫材料者,也有利用鐵架覆以保麗龍片及其他保溫材料再覆以防水帆布,後來逐漸也有利用鋼柱鋼樑與保溫庫板建構者,更有利用廢貨櫃改裝做為環控菇舍。約在2003至2013年之間,以傳統塑膠菇舍栽培洋菇之面積明顯逐年下降,以環控菇舍栽培洋菇面積已逐年擴大中。
台灣洋菇環控栽培仍在發展階段中,菇床架有採用固定式及可移動式二種。關於固定式菇架,其菇床與傳統菇舍類似,堆肥直接放於其上,也有 採用塑膠框或塑膠袋裝填堆肥後放於固定的菇床上者。可移動式者,其菇架長 約2至2.5公尺,寬約1.2公尺(以方便採收為原則),菇床分5至6層,菇床支架在裝填堆肥時才放,裝堆肥時,由下而上,然後以堆高機搬入菇舍內放置。也有菇架在菇舍內是固定的,但菇床採用活動箱式,四周以鍍鋅亞鐵板製,菇床底用鍍鋅亞鐵條支撐,上覆塑膠尼龍綱,堆肥或長滿洋菇菌絲之堆肥在菇舍 外裝填整平,視需要也可同時覆土後,以升降設備移入每層菇架,再利用箱式菇床兩側滑輪的輔助推上菇架。
 稻草堆肥是本國栽培洋菇主要基質材料,而堆肥的發酵方法與配方也從過去至今天持續在改良中。如1974-1983年短期發酵法,到1984-1995年菌床發酵法,1996年以後的傳統發酵方法。環控菇舍的興起,其栽培洋菇所使用之堆肥,其配方可與傳統製作之堆肥相同。今日製作之方式一般可分為三種,第一種為傳統堆肥發酵模式,可在戶外堆積,亦可以在放進洋菇寮後讓其發酵。第二種為大堆發酵(bulk fermentation),戶外堆積與置入隧道式發酵室內發酵。第三種室內發酵(indoor composting),戶外堆積與後面的發酵均在隧道式發酵室內完成的堆肥製作方式。
 新豐鄉於1970年代吹起洋菇栽種的熱潮,青埔梁家第二十一世梁得田因洋菇收購事業有成後,於1990年代新築的菇寮,面積共約1,170平方公尺,在當時新豐鄉算是小有規模的洋菇寮群,產量每年高達30頓有,收成時期需動員不少人手相當熱鬧。梁家的洋菇事業約到2000年以後,因為人口老化、勞動力不足、工資高昂,終究從新豐鄉退場。
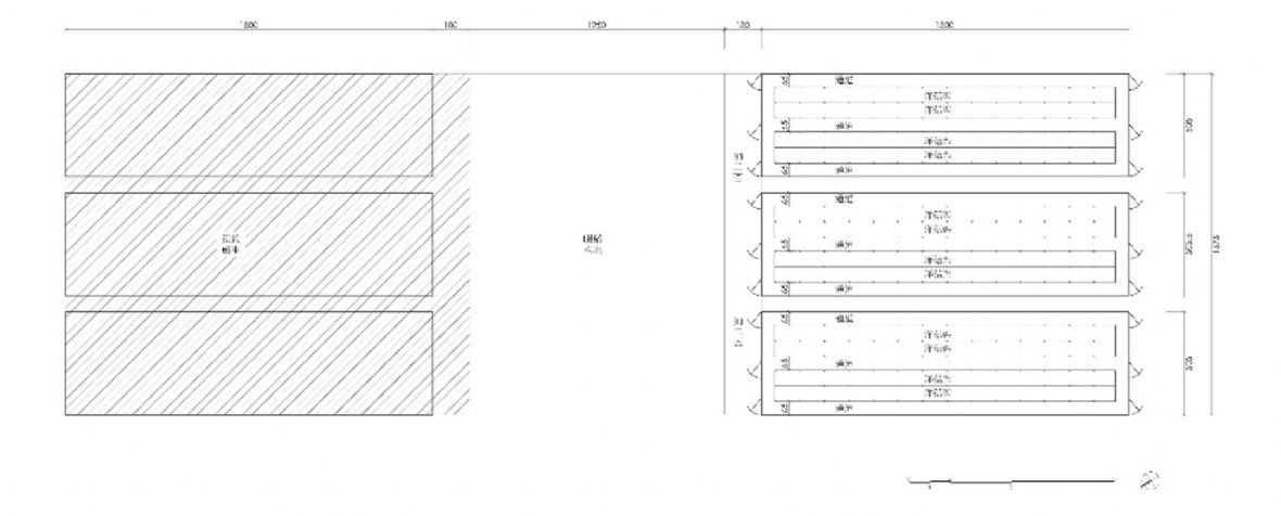
青埔梁屋洋菇寮配置圖

青埔梁屋洋菇寮配置圖

青埔梁屋洋菇寮空拍照片

青埔梁屋洋菇寮空拍照片

青埔梁屋洋菇寮殘留洋菇栽培屋架照片

青埔梁屋洋菇寮殘留洋菇栽培屋架照片

 青埔梁屋洋菇寮殘留洋菇栽培屋架照片

青埔梁屋洋菇寮殘留洋菇栽培屋架照片

青埔梁屋洋菇寮殘留洋菇栽培床架照片

青埔梁屋洋菇寮殘留洋菇栽培床架照片

參考資料

1.陳錦桐、彭金騰,〈台灣洋菇環控週年生產的進行式〉,2013年07月31日《農業知識入口網》(https://kmweb.moa.gov.tw/redirect_files.php?theme=knowledgebase&id=412946)。
2. 陳宗明、呂昀陞、石信德,〈台灣菇類產業生產現況〉,《農業試驗所特刊第197號》,2016年10月,頁13-27。(https://scholars.tari.gov.tw/bitstream/123456789/4785/1/no197-2.pdf)
3.臺灣畜產會,1939,〈地方事情〉,《臺灣畜產會會報》,第2卷第12號,頁93-96。
4.「洋菇 - 龍池洋菇場」《財團法人台北市瑠公農業產銷基金會》(http://www.liukung.org.tw/fap_detail.asp?ID=145)

區域(鄉鎮)

新竹縣 新豐鄉
上一篇報導 更多專題報導 複製本頁連結 下一篇報導